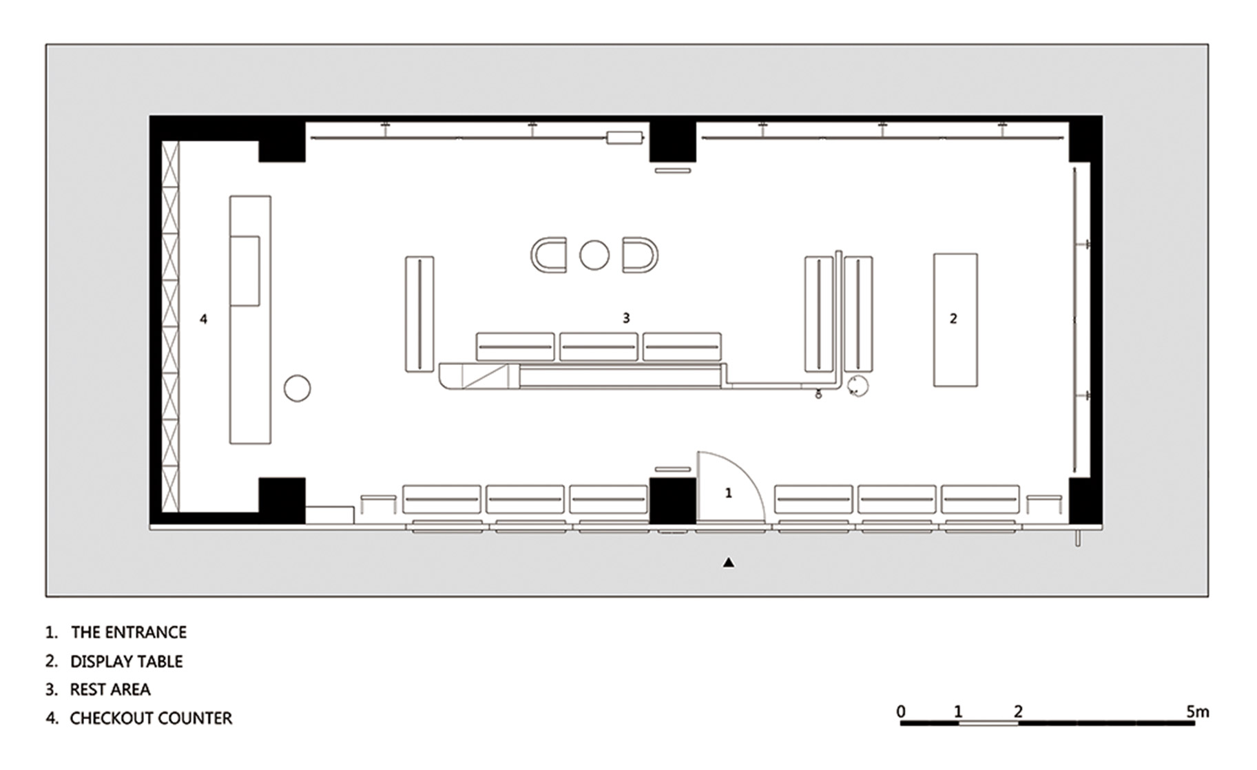
在眾多商業空間的“性格”之中,具有前瞻性的未來感概念越來越脫穎而出,成為一種簡約又前衛的個性密碼為顧客帶來新的感官體驗,也讓空間回歸到服務購物這件事的本質上來。 而未來感的空間極易與消費者之間產生視覺與心理上的雙重距離感,如何將這個主題通過加入柔和又溫暖的人性化設計,打到最佳的平衡,是WELLSKY空間最重要探討的主題。
客戶名稱 : 女裝品牌店設計
服務內容 :
創作日期 : 2018.12

品牌咨
詢熱線:188-1187-3033